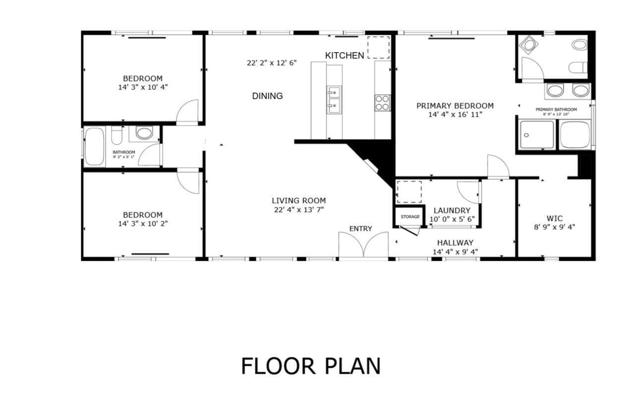
Welcome to Casablanca — A Desert Sanctuary of Luxury and TranquilityExperience Casablanca, a breathtaking desert retreat where luxury meets serenity on over half an acre (22,064 sq. ft.) of beautifully landscaped grounds. This fully furnished, move-in-ready haven is designed for those seeking an extraordinary escape, offering panoramic mountain vistas and an atmosphere of complete relaxation.Step inside to a bright, open floor plan bathed in natural light from expansive floor-to-ceiling bay windows at both the front and back of the home. The living area seamlessly connects to a stylish kitchen featuring granite countertops, stainless steel appliances, and a convenient breakfast bar–perfect for casual dining while taking in the desert views.Enjoy true indoor-outdoor living with spacious front and rear verandas that extend the full length of the home–ideal for morning coffee, sunset gatherings, or simply savoring the stillness of the desert sky.The residence offers three serene bedrooms, including a luxurious primary suite with an oversized walk-in closet and spa-inspired en-suite bath featuring a Japanese-style soaking tub. Each guest room is thoughtfully designed with sliding doors that open to sweeping desert views, creating a seamless connection between indoor comfort and the natural landscape.Outdoors, the spa-like ambiance continues with a private wellness oasis complete with a hot tub, sauna, multiple soaking tubs, in-ground fire pit, outdoor shower, alfresco dining area, adult swing set, and hammocks. Terraced seating areas and a fully equipped outdoor living space transform the desert landscape into an enchanting retreat under the stars.Whether envisioned as a vacation sanctuary or a full-time desert escape, Casablanca embodies the essence of beauty, tranquility, and effortless luxury.All information provided is deemed reliable but is not guaranteed and should be independently verified by the buyer. Buyers are encouraged to conduct their own investigations regarding the property, including permits, zoning, square footage, and intended use. Listing agent and brokerage assume no responsibility for the accuracy of information provided and shall be held harmless in all respects.
Property Details
Price:
$489,000
MLS #:
219137078DA
Status:
Active
Beds:
3
Baths:
2
Type:
Single Family
Subtype:
Single Family Residence
Neighborhood:
dc531
Listed Date:
Oct 16, 2025
Finished Sq Ft:
1,620
Lot Size:
22,064 sqft / 0.51 acres (approx)
Year Built:
2008
See this Listing
Schools
Interior
Exterior
Parking Spots
4
Financial
Map
Community
- AddressLennox AV Yucca Valley CA
- SubdivisionNot Applicable-1
- CityYucca Valley
- CountySan Bernardino
- Zip Code92284
Subdivisions in Yucca Valley
Market Summary
Current real estate data for Single Family in Yucca Valley as of Nov 06, 2025
278
Single Family Listed
117
Avg DOM
339
Avg $ / SqFt
$527,833
Avg List Price
Property Summary
- Located in the Not Applicable-1 subdivision, Lennox AV Yucca Valley CA is a Single Family for sale in Yucca Valley, CA, 92284. It is listed for $489,000 and features 3 beds, 2 baths, and has approximately 1,620 square feet of living space, and was originally constructed in 2008. The current price per square foot is $302. The average price per square foot for Single Family listings in Yucca Valley is $339. The average listing price for Single Family in Yucca Valley is $527,833.
Similar Listings Nearby

Lennox AV
Yucca Valley, CA















































