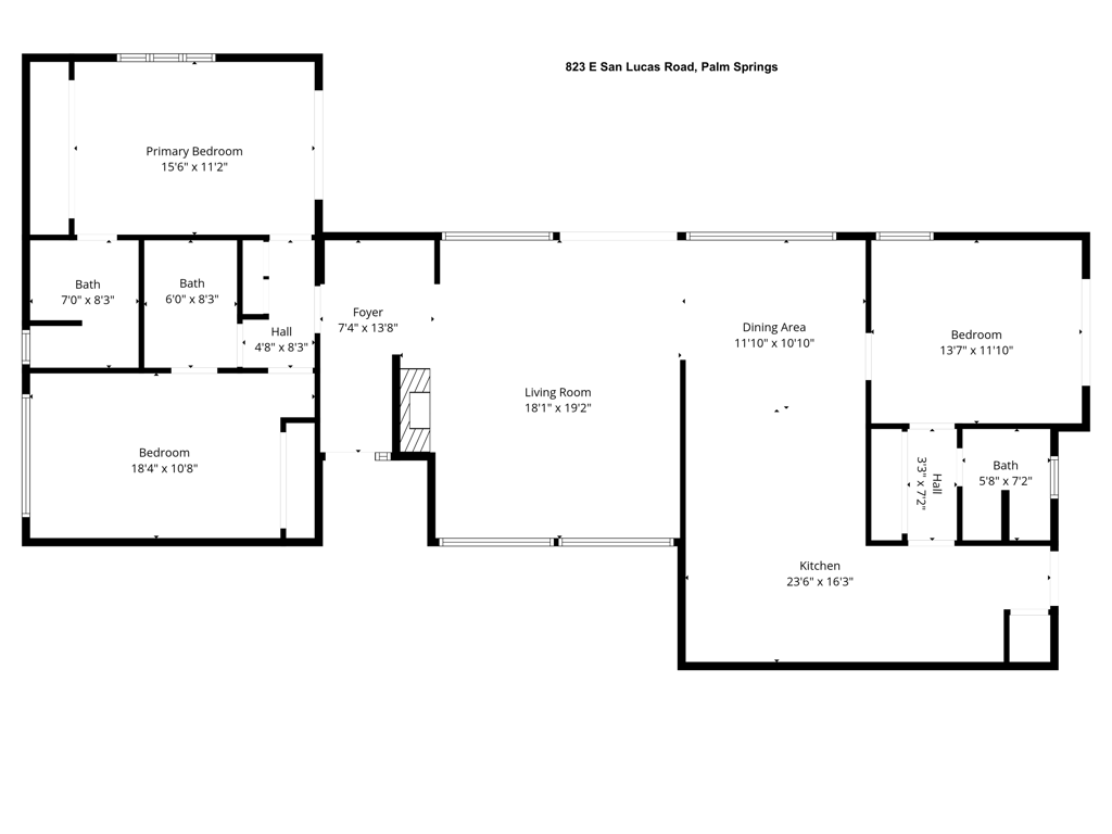
Experience the allure of iconic mid-century modern design with this masterfully crafted home by renowned architect Hugh M. Kaptur, located at 823 E. San Lucas Road, Palm Springs. This architectural gem offers a harmonious blend of historical authenticity and modern convenience. Mr. Kaptur’s distinctive style of Organic Desert Modernism is beautifully encapsulated in this residence, designed to complement the natural desert landscape seamlessly. Known for his ability to harmonize structures with their surroundings, Kaptur’s work on this property is characterized by thoughtful integration and respect for the natural environment. Step inside to discover two of the three bathrooms retain exquisite mid-century tile, preserving the authentic charm of the era. The home’s signature board and batten detailing, along with distinctive beam ends, are a testament to Kaptur’s innovative design vision. The elegant slate flooring seamlessly merges indoor and outdoor spaces, enhancing the home’s natural flow. The property is a haven for those who love to entertain, featuring multiple outdoor areas perfect for gatherings, alongside a tranquil koi pond that adds a touch of serenity to the landscape. The kitchen has been thoughtfully upgraded by Kaptur in 2011 to cater to contemporary living while retaining the home’s original character. Hugh M, Kaptur, celebrated for his contributions to the Palm Springs architectural landscape, is known for creating spaces that are both functional and artistically significant while creating his objective of ”quiet elegance.” This home is not just a residence; it’s a piece of architectural history waiting to be cherished by its next owner.
Property Details
Price:
$1,495,000
MLS #:
219137183DA
Status:
Active
Beds:
3
Baths:
3
Type:
Single Family
Subtype:
Single Family Residence
Subdivision:
Tahquitz River Estat
Neighborhood:
334
Listed Date:
Oct 17, 2025
Finished Sq Ft:
1,711
Lot Size:
11,761 sqft / 0.27 acres (approx)
Year Built:
1958
See this Listing
Schools
School District:
Palm Springs Unified
Elementary School:
Cahuilla
Middle School:
Raymond Cree
High School:
Palm Springs
Interior
Appliances
Gas Cooktop, Microwave, Convection Oven, Self Cleaning Oven, Electric Oven, Vented Exhaust Fan, Water Line to Refrigerator, Refrigerator, Ice Maker, Disposal, Freezer, Dishwasher, Gas Water Heater, Range Hood
Cooling
Zoned, Electric, Central Air
Fireplace Features
Raised Hearth, Gas, Living Room
Flooring
Carpet, Tile
Heating
Central, Forced Air, Natural Gas
Interior Features
Beamed Ceilings, Dry Bar, Track Lighting, Recessed Lighting, Open Floorplan, Bar
Exterior
Exterior Features
Koi Pond
Fencing
Block, Masonry
Foundation Details
Slab
Garage Spaces
2.00
Lot Features
Back Yard, Yard, Landscaped, Front Yard, Corner Lot
Parking Features
Street, Driveway, Garage Door Opener, Circular Driveway, Side by Side, Other
Parking Spots
5
Pool Features
Gunite, In Ground, Electric Heat, Salt Water
Security Features
Security Lights, Fire and Smoke Detection System
Spa Features
Heated, Private, Gunite, In Ground
Stories Total
1
View
Mountain(s)
Financial
Map
Community
- Address823 E San Lucas Road Palm Springs CA
- SubdivisionTahquitz River Estat
- CityPalm Springs
- CountyRiverside
- Zip Code92264
Subdivisions in Palm Springs
- 43 @ Racquet Club
- 48 @ Arenas
- 48 @ Baristo
- 64@theRiv
- Americana Gardens
- Andreas Hills
- Andreas Hills 33402
- Araby
- Araby 33406
- Bella Monte
- Biarritz
- Biltmore
- Biltmore 33409
- Biltmore Colony
- Biltmore Colony 33410
- Caballeros Estates
- Cahuilla Hills
- Calypso Palms
- Camino Del Sol
- Canyon 33522
- Canyon C.C. Estados
- Canyon C.C. Estados 33416
- Canyon CC Colony
- Canyon CC Estados
- Canyon Estates
- Canyon Heights
- Canyon Sands
- Canyon Sands 33423
- Canyon South 1
- Canyon South 2
- Canyon South 3
- Canyon View \\Condos
- Canyon View Condos
- Canyon View Estates
- Canyon Villas
- Canyon Vista Estates
- Canyon West Estates
- Canyons at Belardo The
- Casa Canyon
- Casa De Oro
- Casa Sonora
- Casa Verde
- Casitas Arenas
- Catalina Grove
- Catalina Grove 33213
- Cathedral Canyon CC
- Cathedrl Cyn CC 344A 33437
- Center Court
- Central Palm Springs
- Central Palm Springs 33215
- Chino Canyon
- Coco Cabana
- Colony El Mirador
- Country Club Estates
- Deauville
- Deepwell
- Deepwell 33441
- Deepwell Ranch
- Demuth Park
- Demuth Park 33443
- Desert Arches
- Desert Highland Gateway
- Desert Lanai
- Desert Palisades
- Desert Park Estates
- Desert Park Estates 33103
- Desert Skies
- Desert Sun Resort
- Diplomat
- Diplomat 33445
- Dunes Court
- El Dorado Palm Sprin
- El Dorado Palm Springs
- El Dorado Palm Springs 33447
- El Mirador
- El Rancho Vista Estates
- El Rancho Vista Estates 33246
- Enclave at Baristo
- Enclave at Sunrise
- Enclave at Sunrise 33104
- Escena
- Escena 33274
- Esprit
- Esprit 33448
- Estados South
- Estados South 33449
- Estancias @ So Canyon
- Estancias at South Canyon 33450
- Fairways
- Fairways 33451
- Firebird
- Flora Vista
- Four Seasons
- Four Seasons 33106
- Greenhouse
- Hermosa Villas
- Horizon Mh Village
- Icon
- Indian Canyon Gardens
- Indian Canyons
- Jasmine Homes
- La Palme
- Las Palmas Heights
- LasPalmas-VllaDeLasPalmas
- LasPalmas-VllaHermosa
- Linea
- Little Beverly Hills
- Little Tuscany
- Little Tuscany 33140
- Los Compadres
- Los Compadres 33459
- Los Pueblos
- Los Pueblos 33460
- Luminaire
- Mesa 33523
- Mesquite Canyon Esta
- Mesquite Canyon Estates
- Mesquite Country Clu
- Mesquite Country Club
- Mesquite Country Club 33465
- Miralon
- Monte Sereno
- Mountain Gate
- Mountain Gate PS 33110
- Mountain Shadow North
- Movie Colony
- Movie Colony 33235
- Movie Colony East
- Movie Colony East 33248
- Murano
- Oasis Del Sol 33253
- Oasis Resort Condos
- Oasis Resort Condos 33469
- Oceo
- Ocotillo Lodge
- Old Las Palmas
- Old Las Palmas 33237
- Palermo
- Palm Canyon
- Palm Canyon 60040
- Palm Canyon Mobile C
- Palm Canyon Mobile C 6600
- Palm Canyon Mobile Club
- Palm Canyon Villas
- Palm Canyon Villas 33473
- Palm Oasis
- Palm Regency
- Palm Sp Villas I
- Palm Sp Villas II
- Palm Springs C.C.
- Palm Springs C.C. 33113
- Palm Springs CC
- Palm Springs Golf &
- Palm Springs Golf & Tennis
- Palm Springs View Es
- Palm Springs View Estates
- Palm Springs View Estates 33476
- Palm Springs Villas I
- Palm Springs Villas I 33115
- Palm Springs Villas II
- Palm Springs Villas II 33114
- Palm Villas
- Parc Andreas
- Park Imperial North
- Park Imperial South
- Park Imperial South 33481
- Park San Rafael
- Park San Rafael 33117
- Parkview Mobile Estates
- Pintura
- Pintura 33483
- Plaza Villas
- Plaza Villas 33239
- Pompei De Los Palmas 33241
- PS Colony
- Pueblo Sands
- Quail Point
- Quail Point 33119
- Racquet Club Colony
- Racquet Club East
- Racquet Club East – 5140
- Racquet Club East 33122
- Racquet Club Garden Villas
- Racquet Club West
- Racquet Club West 33124
- Ramon Estados
- Ramon Mobile Park
- Ramona Villas
- Ramona Villas 33486
- Ranch Club Estados
- Ranch Club Estados 33244
- Rancho La Paz
- Rancho La Paz 33487
- Ridgeview
- RimcRest
- Riviera Gardens
- Riviera Gardens 33125
- Rose Garden
- Rose Garden 33247
- Saddlerock Gardens
- Safari Park
- Sagewood
- Sahara Park
- San Jacinto Cove
- San Jacinto Cove 33126
- Sandcliff
- Sandstone Villas
- Seven Lakes C.C.
- Seven Lakes Country Club
- Sierra Madre
- Skye
- Smoke Tree Racquet Club
- Smoke Tree Ranch
- Smoketree Racquet Cl
- Sol
- Southridge
- St. Baristo
- St. Tropez Villas
- Sun Canyon Estates
- Sun Villas
- Sundance Resort
- Sunflower
- Sunkist Villas
- Sunkist Villas 33255
- Sunmor
- Sunrise Alejo
- Sunrise East
- Sunrise Oasis
- Sunrise Palms
- Sunrise Park
- Sunrise Park 33257
- Sunrise Park Sunrise Park
- Sunrise Racquet Club
- Sunrise Villas
- Sunshine Villa
- Sunshine Villas
- Tahquitz Creek Golf
- Tahquitz Creek Golf Course 33508
- Tahquitz Creek Villas
- Tahquitz River Estat
- Tahquitz River Estates
- Tahquitz River Estates 33510
- Tennis Club
- Tennis Club SFR 33261
- Tennis Club South
- TennisClub-500 West
- Terra Vita
- The Mesa
- The Morrison
- The Pointe
- The Que at Vibe
- The Villas in Old PS
- TheTennis ClubCondos
- Tierra Hermosa
- Tuscany Heights
- Twin Palms
- Twin Springs
- Versailles
- Vibe
- Victoria Park 33134
- Victoria Park/Vista Norte
- Villa Alejo
- Villa Caballeros
- Villa De Las Flores
- Villa Roma
- Village Racquet Club
- Village Traditions
- Villas De Las Flores
- Villorrio
- Vintage Palms
- Vintage Palms 33135
- Vista Canyon
- Vista Las Palmas
- Warm Sands
- Warm Sands 33520
- Waverly Park 33521
Market Summary
Current real estate data for Single Family in Palm Springs as of Nov 03, 2025
607
Single Family Listed
61
Avg DOM
555
Avg $ / SqFt
$1,215,835
Avg List Price
Property Summary
- Located in the Tahquitz River Estat subdivision, 823 E San Lucas Road Palm Springs CA is a Single Family for sale in Palm Springs, CA, 92264. It is listed for $1,495,000 and features 3 beds, 3 baths, and has approximately 1,711 square feet of living space, and was originally constructed in 1958. The current price per square foot is $874. The average price per square foot for Single Family listings in Palm Springs is $555. The average listing price for Single Family in Palm Springs is $1,215,835.
Similar Listings Nearby

823 E San Lucas Road
Palm Springs, CA







































































