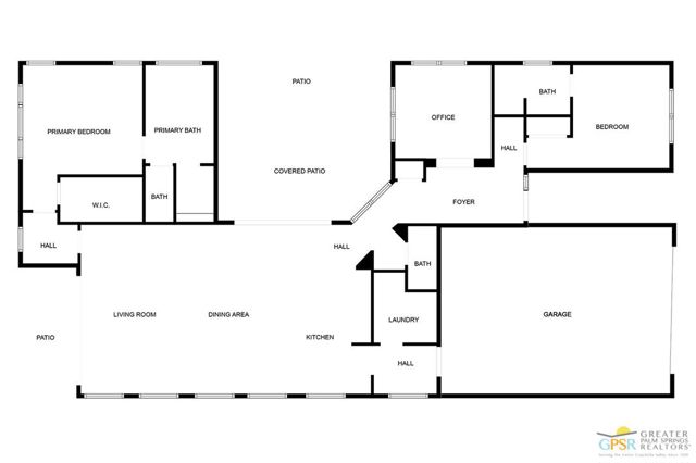
This stunning Toll Brothers “Aldea” floor plan home in Escena blends modern design with effortless indoor-outdoor living. Featuring 2 bedrooms plus a versatile den/office, 2.5 baths, and soaring ceilings with clerestory windows. The open layout showcases a chef’s kitchen with quartz countertops, custom backsplash, a unique center island with breakfast bar, and built-in KitchenAid appliances that connect seamlessly to the expansive great room and dining area. Tall sliding doors flood the home with natural light and open to multiple outdoor spaces, including a South-facing patio with private Spa and barbecue area as well as a second covered patio with private gas fire pit. The spacious primary suite offers a walk-in closet, dual vanities, soaking tub, and oversized shower, while the junior ensuite provides privacy for guests. Additional highlights include a powder room, separate laundry with sink, an attached 2-car garage, custom window treatments on Low-E windows, an energy-efficient leased solar system, a whole house water softener, a reverse osmosis system for drinking water, and a tankless water heater. Best of all, this property is available turnkey furnished, per inventory list. Set within Escena’s beautifully landscaped, gated community anchored by a Nicklaus-designed championship golf course, residents enjoy access to a lovely clubhouse and restaurant with a terrace that offers striking views, dog parks, and scenic walking paths all with low HOA dues.
Property Details
Price:
$949,000
MLS #:
25591937PS
Status:
Active
Beds:
2
Baths:
3
Type:
Single Family
Subtype:
Single Family Residence
Subdivision:
Escena
Neighborhood:
332
Listed Date:
Sep 17, 2025
Finished Sq Ft:
1,964
Total Sq Ft:
1,964
Lot Size:
5,227 sqft / 0.12 acres (approx)
Year Built:
2018
See this Listing
Schools
Interior
Exterior
Parking Spots
2
Financial
HOA Fee
$240
HOA Frequency
MO
Map
Community
- AddressCyan LN Palm Springs CA
- SubdivisionEscena
- CityPalm Springs
- CountyRiverside
- Zip Code92262
Subdivisions in Palm Springs
- 43 @ Racquet Club
- 48 @ Arenas
- 48 @ Baristo
- 64@theRiv
- Americana Gardens
- Andreas Hills
- Andreas Hills 33402
- Araby
- Araby 33406
- Bella Monte
- Biarritz
- Biltmore
- Biltmore 33409
- Biltmore Colony
- Biltmore Colony 33410
- Caballeros Estates
- Cahuilla Hills
- Calypso Palms
- Camino Del Sol
- Canyon 33522
- Canyon C.C. Estados
- Canyon C.C. Estados 33416
- Canyon CC Colony
- Canyon CC Estados
- Canyon Estates
- Canyon Heights
- Canyon Sands
- Canyon Sands 33423
- Canyon South 1
- Canyon South 2
- Canyon South 3
- Canyon View \\Condos
- Canyon View Condos
- Canyon View Estates
- Canyon Villas
- Canyon Vista Estates
- Canyon West Estates
- Canyons at Belardo The
- Casa Canyon
- Casa De Oro
- Casa Sonora
- Casa Verde
- Casitas Arenas
- Catalina Grove
- Catalina Grove 33213
- Cathedral Canyon CC
- Cathedrl Cyn CC 344A 33437
- Center Court
- Central Palm Springs
- Central Palm Springs 33215
- Chino Canyon
- Coco Cabana
- Colony El Mirador
- Country Club Estates
- Deauville
- Deepwell
- Deepwell 33441
- Deepwell Ranch
- Demuth Park
- Demuth Park 33443
- Desert Arches
- Desert Highland Gateway
- Desert Lanai
- Desert Palisades
- Desert Park Estates
- Desert Park Estates 33103
- Desert Skies
- Desert Sun Resort
- Diplomat
- Diplomat 33445
- Dunes Court
- El Dorado Palm Sprin
- El Dorado Palm Springs
- El Dorado Palm Springs 33447
- El Mirador
- El Rancho Vista Estates
- El Rancho Vista Estates 33246
- Enclave at Baristo
- Enclave at Sunrise
- Enclave at Sunrise 33104
- Escena
- Escena 33274
- Esprit
- Esprit 33448
- Estados South
- Estados South 33449
- Estancias @ So Canyon
- Estancias at South Canyon 33450
- Fairways
- Fairways 33451
- Firebird
- Flora Vista
- Four Seasons
- Four Seasons 33106
- Greenhouse
- Hermosa Villas
- Horizon Mh Village
- Icon
- Indian Canyon Gardens
- Indian Canyons
- Jasmine Homes
- La Palme
- Las Palmas Heights
- LasPalmas-VllaDeLasPalmas
- LasPalmas-VllaHermosa
- Linea
- Little Beverly Hills
- Little Tuscany
- Little Tuscany 33140
- Los Compadres
- Los Compadres 33459
- Los Pueblos
- Los Pueblos 33460
- Luminaire
- Mesa 33523
- Mesquite Canyon Esta
- Mesquite Canyon Estates
- Mesquite Country Clu
- Mesquite Country Club
- Mesquite Country Club 33465
- Miralon
- Monte Sereno
- Mountain Gate
- Mountain Gate PS 33110
- Mountain Shadow North
- Movie Colony
- Movie Colony 33235
- Movie Colony East
- Movie Colony East 33248
- Murano
- Oasis Del Sol 33253
- Oasis Resort Condos
- Oasis Resort Condos 33469
- Oceo
- Ocotillo Lodge
- Old Las Palmas
- Old Las Palmas 33237
- Palermo
- Palm Canyon
- Palm Canyon 60040
- Palm Canyon Mobile C
- Palm Canyon Mobile C 6600
- Palm Canyon Mobile Club
- Palm Canyon Villas
- Palm Canyon Villas 33473
- Palm Oasis
- Palm Regency
- Palm Sp Villas I
- Palm Sp Villas II
- Palm Springs C.C.
- Palm Springs C.C. 33113
- Palm Springs CC
- Palm Springs Golf &
- Palm Springs Golf & Tennis
- Palm Springs View Es
- Palm Springs View Estates
- Palm Springs View Estates 33476
- Palm Springs Villas I
- Palm Springs Villas I 33115
- Palm Springs Villas II
- Palm Springs Villas II 33114
- Palm Villas
- Parc Andreas
- Park Imperial North
- Park Imperial South
- Park Imperial South 33481
- Park San Rafael
- Park San Rafael 33117
- Parkview Mobile Estates
- Pintura
- Pintura 33483
- Plaza Villas
- Plaza Villas 33239
- Pompei De Los Palmas 33241
- PS Colony
- Pueblo Sands
- Quail Point
- Quail Point 33119
- Racquet Club Colony
- Racquet Club East
- Racquet Club East – 5140
- Racquet Club East 33122
- Racquet Club Garden Villas
- Racquet Club West
- Racquet Club West 33124
- Ramon Estados
- Ramon Mobile Park
- Ramona Villas
- Ramona Villas 33486
- Ranch Club Estados
- Ranch Club Estados 33244
- Rancho La Paz
- Rancho La Paz 33487
- Ridgeview
- RimcRest
- Riviera Gardens
- Riviera Gardens 33125
- Rose Garden
- Rose Garden 33247
- Saddlerock Gardens
- Safari Park
- Sagewood
- Sahara Park
- San Jacinto Cove
- San Jacinto Cove 33126
- Sandcliff
- Sandstone Villas
- Seven Lakes C.C.
- Seven Lakes Country Club
- Sierra Madre
- Skye
- Smoke Tree Racquet Club
- Smoke Tree Ranch
- Smoketree Racquet Cl
- Sol
- Southridge
- St. Baristo
- St. Tropez Villas
- Sun Canyon Estates
- Sun Villas
- Sundance Resort
- Sunflower
- Sunkist Villas
- Sunkist Villas 33255
- Sunmor
- Sunrise Alejo
- Sunrise East
- Sunrise Oasis
- Sunrise Palms
- Sunrise Park
- Sunrise Park 33257
- Sunrise Park Sunrise Park
- Sunrise Racquet Club
- Sunrise Villas
- Sunshine Villa
- Sunshine Villas
- Tahquitz Creek Golf
- Tahquitz Creek Golf Course 33508
- Tahquitz Creek Villas
- Tahquitz River Estat
- Tahquitz River Estates
- Tahquitz River Estates 33510
- Tennis Club
- Tennis Club SFR 33261
- Tennis Club South
- TennisClub-500 West
- Terra Vita
- The Mesa
- The Morrison
- The Pointe
- The Que at Vibe
- The Villas in Old PS
- TheTennis ClubCondos
- Tierra Hermosa
- Tuscany Heights
- Twin Palms
- Twin Springs
- Versailles
- Vibe
- Victoria Park 33134
- Victoria Park/Vista Norte
- Villa Alejo
- Villa Caballeros
- Villa De Las Flores
- Villa Roma
- Village Racquet Club
- Village Traditions
- Villas De Las Flores
- Villorrio
- Vintage Palms
- Vintage Palms 33135
- Vista Canyon
- Vista Las Palmas
- Warm Sands
- Warm Sands 33520
- Waverly Park 33521
Market Summary
Current real estate data for Single Family in Palm Springs as of Oct 31, 2025
645
Single Family Listed
59
Avg DOM
545
Avg $ / SqFt
$1,171,537
Avg List Price
Property Summary
- Located in the Escena subdivision, Cyan LN Palm Springs CA is a Single Family for sale in Palm Springs, CA, 92262.  It is listed for $949,000 and features 2 beds, 3 baths, and has approximately 1,964 square feet of living space, and was originally constructed in 2018. The current price per square foot is $483.  The average price per square foot for Single Family listings in Palm Springs is $545.  The average listing price for Single Family in Palm Springs is $1,171,537.  
Similar Listings Nearby

Cyan LN
Palm Springs, CA




















































