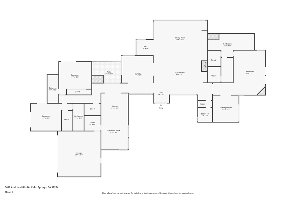
3410 Andreas Hills — Where Hollywood Glamour Meets Desert Cool. Located in Andreas Hills – widely known as the Bel Air of Palm Springs – this 3,207 sq ft residence was designed by celebrated modernist John Walling to capture the essence of the city’s golden era. Floor-to-ceiling glass and clean architectural lines create an effortless connection between indoors and out, setting the tone for a home where Hollywood glamour meets desert cool. The home’s grand living pavilion evokes the jet-set spirit of the 1970s – a luminous expanse of glass and stone where dining, lounging, and cocktails flow beneath soaring ceilings. A sleek gas fireplace anchors the space, while the built-in Sonos system and sunken wet bar make entertaining feel timeless and cinematic. A pass-through window opens directly to the covered outdoor lounge, enhancing the home’s signature indoor-outdoor lifestyle. The chef’s kitchen, newly remodeled with double ovens and a gas cooktop, is perfect for intimate meals or weekend hosting. Outdoors, an oversized corner lot reveals elegantly manicured gardens – sculpted boxwood hedges, blooming rose bushes, and multiple citrus trees that perfume the air. A resort-style pool, alfresco dining terrace, and fire-pit lounge create an unforgettable backdrop for long desert evenings. The layout offers three private bedrooms, including a secluded primary suite with its own fireplace, spa-inspired bath, and two serene patios. A consistent guest favorite on Airbnb, the home enjoys a strong rental history. Its interiors and amenities were intentionally crafted to offer visitors the rare experience of living inside the Palm Springs of the 1970s — glamour, ease, and iconic design preserved with authenticity. Adding to its cultural cachet, the property was formerly owned by the Kardashian/Jenner family, enhancing its appeal as both a lifestyle residence and a high-performing investment home. Highlights: Located in Andreas Hills, the ‘Bel Air of Palm Springs’ Iconic 1970s John Walling design Grand living pavilion with sunken wet bar Floor-to-ceiling glass & seamless indoor-outdoor flow Gas fireplaces in living room & primary suite Newly remodeled chef’s kitchen (double ovens, gas cooktop) Built-in Sonos sound system Resort-style pool with formal gardens Boxwoods, roses & citrus trees Guest-favorite Airbnb with strong rental history Formerly owned by the Kardashian/Jenner family
Property Details
Price:
$2,837,430
MLS #:
219137188PS
Status:
Active
Beds:
3
Baths:
4
Type:
Single Family
Subtype:
Single Family Residence
Subdivision:
Andreas Hills
Listed Date:
Oct 17, 2025
Finished Sq Ft:
3,207
Lot Size:
17,860 sqft / 0.41 acres (approx)
Year Built:
1975
See this Listing
Schools
Interior
Appliances
Gas Cooktop, Microwave, Convection Oven, Self Cleaning Oven, Electric Oven, Vented Exhaust Fan, Water Line to Refrigerator, Refrigerator, Disposal, Freezer, Dishwasher, Gas Water Heater, Range Hood
Cooling
Zoned, Central Air
Fireplace Features
Gas, Living Room, Patio, Primary Bedroom
Flooring
Stone, Tile, Wood
Heating
Central, Zoned, Forced Air, Natural Gas
Interior Features
Built-in Features, Wet Bar, Storage, Recessed Lighting, Open Floorplan
Window Features
Shutters, Screens, Skylight(s)
Exterior
Exterior Features
Barbecue Private
Fencing
Block
Foundation Details
Slab
Garage Spaces
2.00
Lot Features
Back Yard, Yard, Level, Landscaped, Lawn, Front Yard, Corner Lot
Parking Features
Side by Side, Driveway, Garage Door Opener, Circular Driveway
Pool Features
Waterfall, Gunite, In Ground, Electric Heat, Private
Roof
Foam
Security Features
Closed Circuit Camera(s)
Spa Features
Heated, Private, Gunite, In Ground
Stories Total
1
View
Mountain(s), Pool, Panoramic
Financial
Map
Community
- Address3410 Andreas Hills Drive Palm Springs CA
- SubdivisionAndreas Hills
- CityPalm Springs
- CountyRiverside
- Zip Code92264
Subdivisions in Palm Springs
- 43 @ Racquet Club
- 48 @ Arenas
- 48 @ Baristo
- 64@theRiv
- Americana Gardens
- Andreas Hills
- Andreas Hills 33402
- Araby
- Araby 33406
- Bella Monte
- Biarritz
- Biltmore
- Biltmore 33409
- Biltmore Colony
- Biltmore Colony 33410
- Caballeros Estates
- Cahuilla Hills
- Calypso Palms
- Camino Del Sol
- Canyon 33522
- Canyon C.C. Estados
- Canyon C.C. Estados 33416
- Canyon CC Colony
- Canyon CC Estados
- Canyon Estates
- Canyon Heights
- Canyon Sands
- Canyon Sands 33423
- Canyon South 1
- Canyon South 2
- Canyon South 3
- Canyon View \\Condos
- Canyon View Condos
- Canyon View Estates
- Canyon Villas
- Canyon Vista Estates
- Canyon West Estates
- Canyons at Belardo The
- Casa Canyon
- Casa De Oro
- Casa Sonora
- Casa Verde
- Casitas Arenas
- Catalina Grove
- Catalina Grove 33213
- Cathedral Canyon CC
- Cathedrl Cyn CC 344A 33437
- Center Court
- Central Palm Springs
- Central Palm Springs 33215
- Chino Canyon
- Coco Cabana
- Colony El Mirador
- Country Club Estates
- Deauville
- Deepwell
- Deepwell 33441
- Deepwell Ranch
- Demuth Park
- Demuth Park 33443
- Desert Arches
- Desert Highland Gateway
- Desert Lanai
- Desert Palisades
- Desert Park Estates
- Desert Park Estates 33103
- Desert Skies
- Desert Sun Resort
- Diplomat
- Diplomat 33445
- Dunes Court
- El Dorado Palm Sprin
- El Dorado Palm Springs
- El Dorado Palm Springs 33447
- El Mirador
- El Rancho Vista Estates
- El Rancho Vista Estates 33246
- Enclave at Baristo
- Enclave at Sunrise
- Enclave at Sunrise 33104
- Escena
- Escena 33274
- Esprit
- Esprit 33448
- Estados South
- Estados South 33449
- Estancias @ So Canyon
- Estancias at South Canyon 33450
- Fairways
- Fairways 33451
- Firebird
- Flora Vista
- Four Seasons
- Four Seasons 33106
- Greenhouse
- Hermosa Villas
- Horizon Mh Village
- Icon
- Indian Canyon Gardens
- Indian Canyons
- Jasmine Homes
- La Palme
- Las Palmas Heights
- LasPalmas-VllaDeLasPalmas
- LasPalmas-VllaHermosa
- Linea
- Little Beverly Hills
- Little Tuscany
- Little Tuscany 33140
- Los Compadres
- Los Compadres 33459
- Los Pueblos
- Los Pueblos 33460
- Luminaire
- Mesa 33523
- Mesquite Canyon Esta
- Mesquite Canyon Estates
- Mesquite Country Clu
- Mesquite Country Club
- Mesquite Country Club 33465
- Miralon
- Monte Sereno
- Mountain Gate
- Mountain Gate PS 33110
- Mountain Shadow North
- Movie Colony
- Movie Colony 33235
- Movie Colony East
- Movie Colony East 33248
- Murano
- Oasis Del Sol 33253
- Oasis Resort Condos
- Oasis Resort Condos 33469
- Oceo
- Ocotillo Lodge
- Old Las Palmas
- Old Las Palmas 33237
- Palermo
- Palm Canyon
- Palm Canyon 60040
- Palm Canyon Mobile C
- Palm Canyon Mobile C 6600
- Palm Canyon Mobile Club
- Palm Canyon Villas
- Palm Canyon Villas 33473
- Palm Oasis
- Palm Regency
- Palm Sp Villas I
- Palm Sp Villas II
- Palm Springs C.C.
- Palm Springs C.C. 33113
- Palm Springs CC
- Palm Springs Golf &
- Palm Springs Golf & Tennis
- Palm Springs View Es
- Palm Springs View Estates
- Palm Springs View Estates 33476
- Palm Springs Villas I
- Palm Springs Villas I 33115
- Palm Springs Villas II
- Palm Springs Villas II 33114
- Palm Villas
- Parc Andreas
- Park Imperial North
- Park Imperial South
- Park Imperial South 33481
- Park San Rafael
- Park San Rafael 33117
- Parkview Mobile Estates
- Pintura
- Pintura 33483
- Plaza Villas
- Plaza Villas 33239
- Pompei De Los Palmas 33241
- PS Colony
- Pueblo Sands
- Quail Point
- Quail Point 33119
- Racquet Club Colony
- Racquet Club East
- Racquet Club East – 5140
- Racquet Club East 33122
- Racquet Club Garden Villas
- Racquet Club West
- Racquet Club West 33124
- Ramon Estados
- Ramon Mobile Park
- Ramona Villas
- Ramona Villas 33486
- Ranch Club Estados
- Ranch Club Estados 33244
- Rancho La Paz
- Rancho La Paz 33487
- Ridgeview
- RimcRest
- Riviera Gardens
- Riviera Gardens 33125
- Rose Garden
- Rose Garden 33247
- Saddlerock Gardens
- Safari Park
- Sagewood
- Sahara Park
- San Jacinto Cove
- San Jacinto Cove 33126
- Sandcliff
- Sandstone Villas
- Seven Lakes C.C.
- Seven Lakes Country Club
- Sierra Madre
- Skye
- Smoke Tree Racquet Club
- Smoke Tree Ranch
- Smoketree Racquet Cl
- Sol
- Southridge
- St. Baristo
- St. Tropez Villas
- Sun Canyon Estates
- Sun Villas
- Sundance Resort
- Sunflower
- Sunkist Villas
- Sunkist Villas 33255
- Sunmor
- Sunrise Alejo
- Sunrise East
- Sunrise Oasis
- Sunrise Palms
- Sunrise Park
- Sunrise Park 33257
- Sunrise Park Sunrise Park
- Sunrise Racquet Club
- Sunrise Villas
- Sunshine Villa
- Sunshine Villas
- Tahquitz Creek Golf
- Tahquitz Creek Golf Course 33508
- Tahquitz Creek Villas
- Tahquitz River Estat
- Tahquitz River Estates
- Tahquitz River Estates 33510
- Tennis Club
- Tennis Club SFR 33261
- Tennis Club South
- TennisClub-500 West
- Terra Vita
- The Mesa
- The Morrison
- The Pointe
- The Que at Vibe
- The Villas in Old PS
- TheTennis ClubCondos
- Tierra Hermosa
- Tuscany Heights
- Twin Palms
- Twin Springs
- Versailles
- Vibe
- Victoria Park 33134
- Victoria Park/Vista Norte
- Villa Alejo
- Villa Caballeros
- Villa De Las Flores
- Villa Roma
- Village Racquet Club
- Village Traditions
- Villas De Las Flores
- Villorrio
- Vintage Palms
- Vintage Palms 33135
- Vista Canyon
- Vista Las Palmas
- Warm Sands
- Warm Sands 33520
- Waverly Park 33521
Market Summary
Current real estate data for Single Family in Palm Springs as of Dec 26, 2025
520
Single Family Listed
85
Avg DOM
614
Avg $ / SqFt
$1,375,512
Avg List Price
Property Summary
- Located in the Andreas Hills subdivision, 3410 Andreas Hills Drive Palm Springs CA is a Single Family for sale in Palm Springs, CA, 92264. It is listed for $2,837,430 and features 3 beds, 4 baths, and has approximately 3,207 square feet of living space, and was originally constructed in 1975. The current price per square foot is $885. The average price per square foot for Single Family listings in Palm Springs is $614. The average listing price for Single Family in Palm Springs is $1,375,512.
Similar Listings Nearby

3410 Andreas Hills Drive
Palm Springs, CA















































