UPGRADES GALORE | STUNNING VIEWS | OWNED SOLAR — and that’s just the beginning! This home seamlessly blends style, space, and sophistication–ideal for year-round living or luxury Palm Springs getaway. Picture yourself in the evening unwinding by your west-facing private oversized salt-water pool, watching the illuminated Palm Springs Aerial Tram glide up and down majestic Mount San Jacinto. Wander back through the expansive covered patio into the stunning great room where custom design details shine in every corner. The striking Italian tile feature-wall anchors the open-concept living area, adding pizazz and elegance. During the day, sunlight pours through large windows, enhancing the home’s bright, airy vibe. The premium kitchen, equipped with Fisher & Paykel appliances, makes cooking joyful, while high ceilings and 8’x32′ Sav Wood porcelain tiles throughout elevate the sense of refinement. The floor plan offers smart separation: two guest bedrooms on one side and a primary suite on the other, opening directly to the patio, pool, and spa. Don’t miss the custom-configured massive closet–complete with a built-in home office. In addition to OWNING THE LAND, the modest HOA fee provides incredible community amenities, including a private clubhouse ”village” with fitness center, two pools, spa, bocce court, lakes, dog parks, demo kitchen, cafe, and bar/lounge. Miralon is a ”Developing Lifestyle Living” community and one of its many features is the owner of the Temecula Olive Oil Company supplies Miralon with the plethora of olive trees with locally produced olive oil for sale as well. On occasion, he cooks for the residents in club’s demo kitchen and conducts walks with the residents along the stunning trails around the community. Miralon also has a food club that boasts periodic events sponsored by local eateries. In Addition to the (owned) solar panels, the home has a whole-house water conditioning system. The seller’s meticulous care makes this 2022 new construction home still feel minty-new. Whether relaxing poolside, soaking in the views, or ”chilling-out” inside, this home delivers Palm Springs living at its finest. Don’t wait–experience the ultimate in desert luxury today!
Property Details
Price:
$1,270,000
MLS #:
219137168DA
Status:
Active
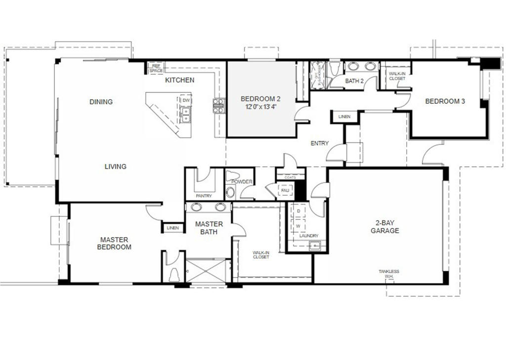
Beds:
3
Baths:
3
Type:
Single Family
Subtype:
Single Family Residence
Listed Date:
Oct 17, 2025
Finished Sq Ft:
2,241
Lot Size:
6,098 sqft / 0.14 acres (approx)
Year Built:
2021
See this Listing
Schools
Interior
Appliances
Gas Cooktop, Microwave, Convection Oven, Self Cleaning Oven, Electric Oven, Vented Exhaust Fan, Water Line to Refrigerator, Water Softener, Refrigerator, Disposal, Dishwasher, Gas Water Heater, Tankless Water Heater, Range Hood
Cooling
Central Air
Flooring
Tile
Heating
Central, Forced Air, Natural Gas
Interior Features
High Ceilings, Recessed Lighting, Open Floorplan
Window Features
Drapes, Blinds
Exterior
Association Amenities
Barbecue, Pet Rules, Picnic Area, Management, Meeting Room, Maintenance Grounds, Hiking Trails, Gym/Ex Room, Clubhouse, Controlled Access, Biking Trails, Banquet Facilities, Bocce Ball Court, Clubhouse Paid
Fencing
Block, Wrought Iron
Foundation Details
Slab, Quake Bracing
Garage Spaces
2.00
Green Energy Efficient
Appliances, Water Heater, Windows, Doors
Lot Features
Back Yard, Yard, Level, Landscaped, Sprinklers Drip System, Planned Unit Development
Parking Features
Garage Door Opener
Pool Features
Gunite, Pebble, In Ground, Electric Heat, Private
Roof
Foam
Security Features
Card/Code Access, Gated Community, Fire Sprinkler System
Spa Features
Heated, Private, Gunite, In Ground
Stories Total
1
View
Mountain(s)
Financial
Association Fee
550.00
Map
Community
- Address3735 Taylor Drive Palm Springs CA
- CityPalm Springs
- CountyRiverside
- Zip Code92262
Subdivisions in Palm Springs
- 43 @ Racquet Club
- 48 @ Arenas
- 48 @ Baristo
- 64@theRiv
- Americana Gardens
- Andreas Hills
- Andreas Hills 33402
- Araby
- Araby 33406
- Bella Monte
- Biarritz
- Biltmore
- Biltmore 33409
- Biltmore Colony
- Biltmore Colony 33410
- Caballeros Estates
- Cahuilla Hills
- Calypso Palms
- Camino Del Sol
- Canyon 33522
- Canyon C.C. Estados
- Canyon C.C. Estados 33416
- Canyon CC Colony
- Canyon CC Estados
- Canyon Estates
- Canyon Heights
- Canyon Sands
- Canyon Sands 33423
- Canyon South 1
- Canyon South 2
- Canyon South 3
- Canyon View \\Condos
- Canyon View Condos
- Canyon View Estates
- Canyon Villas
- Canyon Vista Estates
- Canyon West Estates
- Canyons at Belardo The
- Casa Canyon
- Casa De Oro
- Casa Sonora
- Casa Verde
- Casitas Arenas
- Catalina Grove
- Catalina Grove 33213
- Cathedral Canyon CC
- Cathedrl Cyn CC 344A 33437
- Center Court
- Central Palm Springs
- Central Palm Springs 33215
- Chino Canyon
- Coco Cabana
- Colony El Mirador
- Country Club Estates
- Deauville
- Deepwell
- Deepwell 33441
- Deepwell Ranch
- Demuth Park
- Demuth Park 33443
- Desert Arches
- Desert Highland Gateway
- Desert Lanai
- Desert Palisades
- Desert Park Estates
- Desert Park Estates 33103
- Desert Skies
- Desert Sun Resort
- Diplomat
- Diplomat 33445
- Dunes Court
- El Dorado Palm Sprin
- El Dorado Palm Springs
- El Dorado Palm Springs 33447
- El Mirador
- El Rancho Vista Estates
- El Rancho Vista Estates 33246
- Enclave at Baristo
- Enclave at Sunrise
- Enclave at Sunrise 33104
- Escena
- Escena 33274
- Esprit
- Esprit 33448
- Estados South
- Estados South 33449
- Estancias @ So Canyon
- Estancias at South Canyon 33450
- Fairways
- Fairways 33451
- Firebird
- Flora Vista
- Four Seasons
- Four Seasons 33106
- Greenhouse
- Hermosa Villas
- Horizon Mh Village
- Icon
- Indian Canyon Gardens
- Indian Canyons
- Jasmine Homes
- La Palme
- Las Palmas Heights
- LasPalmas-VllaDeLasPalmas
- LasPalmas-VllaHermosa
- Linea
- Little Beverly Hills
- Little Tuscany
- Little Tuscany 33140
- Los Compadres
- Los Compadres 33459
- Los Pueblos
- Los Pueblos 33460
- Luminaire
- Mesa 33523
- Mesquite Canyon Esta
- Mesquite Canyon Estates
- Mesquite Country Clu
- Mesquite Country Club
- Mesquite Country Club 33465
- Miralon
- Monte Sereno
- Mountain Gate
- Mountain Gate PS 33110
- Mountain Shadow North
- Movie Colony
- Movie Colony 33235
- Movie Colony East
- Movie Colony East 33248
- Murano
- Oasis Del Sol 33253
- Oasis Resort Condos
- Oasis Resort Condos 33469
- Oceo
- Ocotillo Lodge
- Old Las Palmas
- Old Las Palmas 33237
- Palermo
- Palm Canyon
- Palm Canyon 60040
- Palm Canyon Mobile C
- Palm Canyon Mobile C 6600
- Palm Canyon Mobile Club
- Palm Canyon Villas
- Palm Canyon Villas 33473
- Palm Oasis
- Palm Regency
- Palm Sp Villas I
- Palm Sp Villas II
- Palm Springs C.C.
- Palm Springs C.C. 33113
- Palm Springs CC
- Palm Springs Golf &
- Palm Springs Golf & Tennis
- Palm Springs View Es
- Palm Springs View Estates
- Palm Springs View Estates 33476
- Palm Springs Villas I
- Palm Springs Villas I 33115
- Palm Springs Villas II
- Palm Springs Villas II 33114
- Palm Villas
- Parc Andreas
- Park Imperial North
- Park Imperial South
- Park Imperial South 33481
- Park San Rafael
- Park San Rafael 33117
- Parkview Mobile Estates
- Pintura
- Pintura 33483
- Plaza Villas
- Plaza Villas 33239
- Pompei De Los Palmas 33241
- PS Colony
- Pueblo Sands
- Quail Point
- Quail Point 33119
- Racquet Club Colony
- Racquet Club East
- Racquet Club East – 5140
- Racquet Club East 33122
- Racquet Club Garden Villas
- Racquet Club West
- Racquet Club West 33124
- Ramon Estados
- Ramon Mobile Park
- Ramona Villas
- Ramona Villas 33486
- Ranch Club Estados
- Ranch Club Estados 33244
- Rancho La Paz
- Rancho La Paz 33487
- Ridgeview
- RimcRest
- Riviera Gardens
- Riviera Gardens 33125
- Rose Garden
- Rose Garden 33247
- Saddlerock Gardens
- Safari Park
- Sagewood
- Sahara Park
- San Jacinto Cove
- San Jacinto Cove 33126
- Sandcliff
- Sandstone Villas
- Seven Lakes C.C.
- Seven Lakes Country Club
- Sierra Madre
- Skye
- Smoke Tree Racquet Club
- Smoke Tree Ranch
- Smoketree Racquet Cl
- Sol
- Southridge
- St. Baristo
- St. Tropez Villas
- Sun Canyon Estates
- Sun Villas
- Sundance Resort
- Sunflower
- Sunkist Villas
- Sunkist Villas 33255
- Sunmor
- Sunrise Alejo
- Sunrise East
- Sunrise Oasis
- Sunrise Palms
- Sunrise Park
- Sunrise Park 33257
- Sunrise Park Sunrise Park
- Sunrise Racquet Club
- Sunrise Villas
- Sunshine Villa
- Sunshine Villas
- Tahquitz Creek Golf
- Tahquitz Creek Golf Course 33508
- Tahquitz Creek Villas
- Tahquitz River Estat
- Tahquitz River Estates
- Tahquitz River Estates 33510
- Tennis Club
- Tennis Club SFR 33261
- Tennis Club South
- TennisClub-500 West
- Terra Vita
- The Mesa
- The Morrison
- The Pointe
- The Que at Vibe
- The Villas in Old PS
- TheTennis ClubCondos
- Tierra Hermosa
- Tuscany Heights
- Twin Palms
- Twin Springs
- Versailles
- Vibe
- Victoria Park 33134
- Victoria Park/Vista Norte
- Villa Alejo
- Villa Caballeros
- Villa De Las Flores
- Villa Roma
- Village Racquet Club
- Village Traditions
- Villas De Las Flores
- Villorrio
- Vintage Palms
- Vintage Palms 33135
- Vista Canyon
- Vista Las Palmas
- Warm Sands
- Warm Sands 33520
- Waverly Park 33521
Market Summary
Current real estate data for Single Family in Palm Springs as of Oct 29, 2025
760
Single Family Listed
52
Avg DOM
518
Avg $ / SqFt
$1,062,108
Avg List Price
Property Summary
- 3735 Taylor Drive Palm Springs CA is a Single Family for sale in Palm Springs, CA, 92262. It is listed for $1,270,000 and features 3 beds, 3 baths, and has approximately 2,241 square feet of living space, and was originally constructed in 2021. The current price per square foot is $567. The average price per square foot for Single Family listings in Palm Springs is $518. The average listing price for Single Family in Palm Springs is $1,062,108.
Similar Listings Nearby

3735 Taylor Drive
Palm Springs, CA


