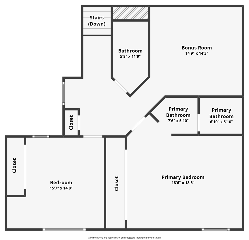
Completely remodeled 1,619 square foot 2 bedroom 2 bathroom end unit condo located in South Palm Desert. With Bonus/ Seating room Remodeled kitchen, bathroom and bedrooms.View of the pool and mountains from the balcony. Gas powered fire place. New counter tops and appliances. Unit does not have a refrigerator. Attached 2 car garage. Listing agent make no guarantee as to the square footage or unit condition. Buyer to make their own investigations. Completed property and termite inspection in MLS and available upon request. Seller may offer seller financing.
Property Details
Price:
$535,000
MLS #:
219139024DA
Status:
Active
Beds:
2
Baths:
2
Type:
Condo
Subtype:
Condominium
Subdivision:
Ryway Cottages
Listed Date:
Nov 6, 2025
Finished Sq Ft:
1,619
Lot Size:
1,574 sqft / 0.04 acres (approx)
Year Built:
1984
See this Listing
Schools
Elementary School:
Washington Charter
Middle School:
Palm Desert
High School:
Palm Desert
Interior
Appliances
Gas Cooktop, Gas Oven, Dishwasher
Cooling
Central Air
Fireplace Features
Gas, Living Room
Flooring
Laminate
Heating
Central, Fireplace(s), Natural Gas
Exterior
Association Amenities
Other
Fencing
Stucco Wall
Garage Spaces
2.00
Lot Features
Sprinkler System
Parking Features
Other, Garage Door Opener
Pool Features
In Ground, Community
Spa Features
Community, Heated, In Ground
Stories Total
2
View
Mountain(s)
Financial
Association Fee
345.00
Utilities
Cable Available
Map
Community
- Address46395 Ryway Place 9 Palm Desert CA
- SubdivisionRyway Cottages
- CityPalm Desert
- CountyRiverside
- Zip Code92260
Subdivisions in Palm Desert
- Avondale Country Clu
- Avondale Country Club
- Avondale Country Club 32401
- Belmonte Estates
- Bighorn Golf Club
- Brava
- Brenna at Capri
- Brenna at Capri 32436
- Cahuilla Hills PD 32302
- Canyon Cove
- Canyon Crest
- Canyon Crest 32232
- Casablanca
- Chaparral C.C.
- Chaparral C.C. 32233
- Chatham Court
- Chukker Inn 32305
- College View Estates
- College View Estates 32235
- Corsican Villas
- Country Club Villas
- Country Club Villas 32236
- Deep Canyon Tennis C
- Deep Canyon Tennis Club 32309
- Deep Canyon Tennis Courts
- Desert Breezes
- Desert Breezes 32404
- Desert Falls C.C.
- Desert Falls C.C. 32405
- Desert Falls Estates
- Desert Falls Estates 32406
- Desert Falls The Lin
- Desert Mirage
- Dolce
- Dolce 32288
- Domani
- El Paseo Village
- El Paseo Village 32310
- Estates At Desert Sp
- Estates At Desert Springs 32238
- Fairview Cottages
- Genesis
- Glenwood
- Golden Sun Estates
- Hidden Palms
- Hidden Palms 32240
- Hovely Estates 32242
- Hovley Estate
- Hovley Palms
- Indian Creek Villas
- Indian Creek Villas 32313
- Indian Hills
- Indian Hills 32350
- Indian Ridge
- Indian Springs Mobil
- International Lodge 32316
- Ironwood Country Clu
- Ironwood Country Club
- Ironwood Country Club 32317
- Kings Point
- Kings PointPD 32318
- Kingston Court
- La Placita
- Lago De Palmas
- Lantana
- Marrakesh Country Cl
- Marrakesh Country Club 32322
- Merano
- Montecito Homes
- Monterey Country Clu
- Monterey Country Club 32250
- Monterey Meadows
- Monterey Meadows 32251
- Monterey Ridge
- Monterey Sands
- Monterra
- Mountain View Falls
- Mountainback
- Oasis Country Club
- Oasis Country Club 32414
- Olive Grove
- Olive Grove 32253
- Palm Desert C.C. Vil
- Palm Desert C.C. Villas 32415
- Palm Desert Country
- Palm Desert Country Club 32417
- Palm Desert Greens
- Palm Desert Greens 32254
- Palm Desert Resort C
- Palm Desert Resort CC 32418
- Palm Desert Tennis C
- Palm Desert Tennis Club 32330
- Palm Gate
- Palm Lakes
- Palm Lakes 32419
- Palm Valley CC
- Palm Valley CC 32420
- Palmira
- Park Palms
- Paseo Vista
- Paseo Vista 32260
- Pele Place
- Portola Country Club
- Portola Country Club 32263
- Portola Del Sol
- Portola Palms
- Regency Estates
- Regency Estates 32422
- Regency Palms
- Regency Palms 32423
- Royal Palms Condos
- Sand & Shadows
- Sand and Shadows 32332
- Sandcastle Homes
- Sandpiper Palm Deser
- Sandroc II
- Shadow Mountain Fairway CC 32351
- Shadow Mtn Resort R.
- Shar-Don
- Silver Sands R.C.
- Silver Sands R.C. 32269
- Silver Spur Community
- Silver Spur Ranch
- Sommerset So. Palm D
- Sonata 2
- Spanish Walk
- Spanish Walk 32427
- Stone Eagle
- Sun City
- Sun City – 20
- Suncrest Country Clb
- Suncrest Country Club
- Sundance
- Sunterrace
- The Gallery
- The Grove
- The Grove 32277
- The Hovely Collection 32278
- The Lakes Country Cl
- The Lakes Country Club 32429
- The Retreat at DW
- Tierra Vista
- Tucson 32431
- University Park
- Valley Palms
- Venezia
- Villa Portofino
- Vista Del Montana
- Vista Palm Desert
- Vista Paseo
- Waring Place
- Wedgewood Glen
- Whitehawk
- Winterhaven
- Woodhaven Country Cl
- Woodhaven Country Club 32435
Market Summary
Current real estate data for Condo in Palm Desert as of Nov 28, 2025
421
Condo Listed
82
Avg DOM
359
Avg $ / SqFt
$575,527
Avg List Price
Property Summary
- Located in the Ryway Cottages subdivision, 46395 Ryway Place 9 Palm Desert CA is a Condo for sale in Palm Desert, CA, 92260. It is listed for $535,000 and features 2 beds, 2 baths, and has approximately 1,619 square feet of living space, and was originally constructed in 1984. The current price per square foot is $330. The average price per square foot for Condo listings in Palm Desert is $359. The average listing price for Condo in Palm Desert is $575,527.
Similar Listings Nearby

46395 Ryway Place 9
Palm Desert, CA




















































