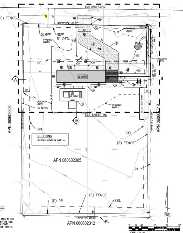
This land comes with a full set of construction ready plans for a rare, shovel-ready custom build luxury modern masterpiece pool house opportunity in Joshua Tree! The design has Mid-Century Modern elements and low, flat rooflines that are a signature look of world-famous California modern desert architecture pioneered in this region in the 1950s. Situated on a 1.38 acre lot the plans call for a 1,558 sf home with 2 beds and 2 baths. As an option, the listing broker, who is also an experienced and licensed general contractor, can construct this house completely turnkey (handling all construction) if requested by the buyer with a separate agreement. The current owner has already invested heavily in bringing the project to this advanced stage, covering the cost of surveying, civil engineering, grading plans, custom luxury architectural plans, heated swimming pool and spa plans, a percolation test, engineered septic plans, and the installation of a brand-new water supply meter. With plans in the final stages of county approval and utilities like water and electricity already on-site, you can start building almost immediately, saving valuable time and money. A key highlight is the property''s location on a paved road, a feature that combines the best of both worlds: the rural, open serenity of the desert with effortless access for any type of vehicle, from SUVs to low-profile sports cars. Designed with short-term luxury rental in mind, the floor plan includes an oversized closet in the hallway in lieu of a garage for additional storage. A carport with a trellis and electric car charging is also included. As an option, a new garage can be added on the spacious lot, with possibly an ADU (Accessory Dwelling Unit) above as a second story. With a completed projected value estimated at $1.1M–$1.2M, and even greater potential with the addition of an ADU or other additional structures, this property offers incredible financial potential either as a forever home or a luxury vacation rental on Airbnb, Vrbo, and other vacation booking apps.
Property Details
Price:
$165,000
MLS #:
IG25218027
Status:
Active
Beds:
0
Baths:
0
Type:
Land
Neighborhood:
dc622
Listed Date:
Sep 15, 2025
Lot Size:
60,113 sqft / 1.38 acres (approx)
See this Listing
Schools
Interior
Exterior
Community Features
Rural
Lot Features
0-1 Unit/Acre
View
Desert, Mountain(s)
Water Source
Public
Financial
Association Fee
0.00
Map
Community
- Address64845 Sun Oro Road Joshua Tree CA
- CityJoshua Tree
- CountySan Bernardino
- Zip Code92252
Subdivisions in Joshua Tree
Market Summary
Current real estate data for Land in Joshua Tree as of Nov 28, 2025
345
Land Listed
322
Avg DOM
$170,197
Avg List Price
Property Summary
- 64845 Sun Oro Road Joshua Tree CA is a Land for sale in Joshua Tree, CA, 92252. It is listed for $165,000 and features 1 acres.
Similar Listings Nearby

64845 Sun Oro Road
Joshua Tree, CA



















































