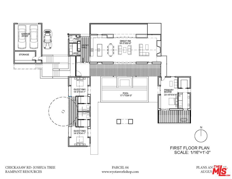
Visionary Architecture Meets Iconic Landscape Your Joshua Tree Dream Begins Here. A rare chance to create your ideal desert retreat, set against the dramatic beauty of sculpted boulders, sweeping panoramic views, and the quiet majesty of Joshua Tree National Park. Welcome to Rock Court, where bold design and natural harmony come together. Plans call for a thoughtfully crafted 4-bedroom, 4.5-bath residence designed to capture the essence of indoor-outdoor living. The main home features a spacious great room with fireplace, an open-concept kitchen with island and dining area, and a luxurious primary suite with sitting room and spa-style bath. Two detached guest casitas, each with ensuite bath, surround a private courtyard with full-size pool, spa, fire pit, and shaded outdoor dining terrace ideal for relaxed gatherings under the stars. A separate guest house offers its own kitchen, bedroom, bath, private view balcony, and covered parking. This turnkey offering includes architectural plans and a complete design package ready for execution. Contact the listing agent for more details and take the next step toward building something truly unforgettable in the heart of Joshua Tree.
Property Details
Price:
$99,000
MLS #:
25570377
Status:
Active
Baths:
0
Type:
Land
Listed Date:
Jul 28, 2025
Lot Size:
100,266 sqft / 2.30 acres (approx)
See this Listing
Schools
Interior
Exterior
View
Desert, Panoramic, Rocks
Financial
Map
Community
- Address63121 Chickasaw Road Joshua Tree CA
- CityJoshua Tree
- CountySan Bernardino
- Zip Code92252
Subdivisions in Joshua Tree
Market Summary
Current real estate data for Land in Joshua Tree as of Nov 28, 2025
345
Land Listed
322
Avg DOM
$170,197
Avg List Price
Property Summary
- 63121 Chickasaw Road Joshua Tree CA is a Land for sale in Joshua Tree, CA, 92252. It is listed for $99,000 and features 2 acres.
Similar Listings Nearby

63121 Chickasaw Road
Joshua Tree, CA

















