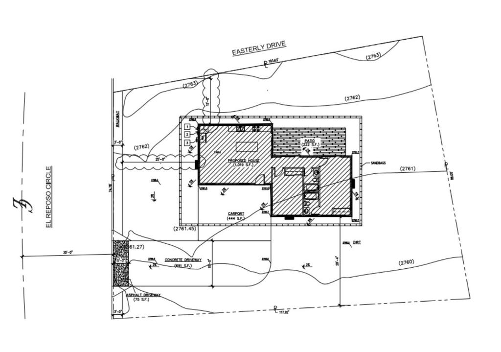
Large 9189sf lot in the trendiest section of the JT Village. Plans expired per Seller, but was previously permitted for a new home. South of the 62 in the Circle Streets. Just 2-3 blocks to the bars, cafes, restaurants, boutiques and the farmers market. Corner lot. New designer homes are popping up. Great views of boulder studded hills. Vistas of snow capped peaks on Mt San Gorgono. Go with a two story home to enhance the visual ambiance of the Little San Bernardino Mtns, Mt Bartlette, and Copper Mtn. In the last few years the JT Village has transformed into a hotspot of cutting edge architecture and the mid century revival. More celebrities, artists, and musicians are now calling the Village home than ever before. Less than a mile to the Sportsman’s Park for tennis, basketball, a splash park, baseball, and skate park. Less than 5 miles to the Joshua Tree National Monument where about 3 million tourists visit annually. Amazing vacation area. Just 40 miles to Palm Springs. 68 miles to Big Bear. High priced homes in the area. Ideal for a modern contemporary home. Paved roads and utilities appear to be right in the street. Enjoy the lazy desert lifestyle just a few hours from Los Angeles. Buyers must contact the county planners for all questions on building permit status and usage. Buyers must verify all utilities. (APN) 0603-121-22-0000 Street address is real. Don’t Wait! – Call Now!
Property Details
Price:
$75,000
MLS #:
219136144PS
Status:
Active
Baths:
0
Type:
Land
Listed Date:
Oct 1, 2025
Lot Size:
18,295 sqft / 0.42 acres (approx)
See this Listing
Schools
Interior
Exterior
Lot Features
Park Nearby, Near Public Transit, Corner Lot
Sewer
Other
Financial
Utilities
Electricity Available, Underground Utilities, Propane, Phone Available, Other
Map
Community
- Address16890 El Reposo Circle Joshua Tree CA
- CityJoshua Tree
- CountySan Bernardino
- Zip Code92252
Subdivisions in Joshua Tree
Market Summary
Current real estate data for Land in Joshua Tree as of Nov 28, 2025
345
Land Listed
322
Avg DOM
$170,197
Avg List Price
Property Summary
- 16890 El Reposo Circle Joshua Tree CA is a Land for sale in Joshua Tree, CA, 92252. It is listed for $75,000 and features 0 acres.
Similar Listings Nearby

16890 El Reposo Circle
Joshua Tree, CA


















