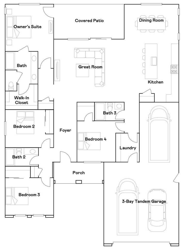
NEW CONSTRUCTION! Ready for Immediate Move-in! This new four-bedroom home provides convenient single-floor living. Three bedrooms are located off the foyer, leading to a spacious open-concept floorplan that blends the kitchen, living and dining areas to maximize interior space. An inviting covered porch offers effortless entertaining and multitasking. The luxurious owner’s suite is nestled into a private corner, complete with a spa-inspired bathroom and walk-in closet.
Rancho Descanso is a new community of single-family homes for sale in Desert Hot Springs, CA. The gated community is located within a vibrant city with endless outdoor recreation at the Whitewater Preserve. Desert Hot Springs is known for its hot and cold mineral springs, with several boutique resorts and spas. Residents can take in local landmarks, including the Palm Springs windmills.
Rancho Descanso is a new community of single-family homes for sale in Desert Hot Springs, CA. The gated community is located within a vibrant city with endless outdoor recreation at the Whitewater Preserve. Desert Hot Springs is known for its hot and cold mineral springs, with several boutique resorts and spas. Residents can take in local landmarks, including the Palm Springs windmills.
Property Details
Price:
$469,530
MLS #:
SW25155756
Status:
Pending
Beds:
4
Baths:
3
Type:
Single Family
Subtype:
Single Family Residence
Listed Date:
Jul 10, 2025
Finished Sq Ft:
2,096
Lot Size:
7,200 sqft / 0.17 acres (approx)
Year Built:
2025
See this Listing
Schools
Interior
Appliances
Dishwasher, Free- Standing Range, Disposal, Microwave
Cooling
Central Air
Fireplace Features
None
Heating
Central
Interior Features
Granite Counters, Open Floorplan, Pantry, Recessed Lighting
Exterior
Association Amenities
Controlled Access, Other
Community Features
Sidewalks, Street Lights, Suburban
Fencing
Block
Foundation Details
Slab
Garage Spaces
3.00
Green Energy Generation
Solar
Lot Features
Front Yard, Level, Sprinkler System
Parking Features
Direct Garage Access, Driveway, Garage
Pool Features
None
Roof
Tile
Security Features
Carbon Monoxide Detector(s), Smoke Detector(s)
Sewer
Public Sewer
Stories Total
1
View
None
Water Source
Public
Financial
Association Fee
179.00
Utilities
Cable Connected, Electricity Connected, Natural Gas Connected, Phone Connected, Sewer Connected, Underground Utilities, Water Connected
Map
Community
- Address65187 Avenida De Nuves Desert Hot Springs CA
- CityDesert Hot Springs
- CountyRiverside
- Zip Code92240
Subdivisions in Desert Hot Springs
- Agua Dulce
- Agua Dulce 34001
- Andreas Hills
- Cornerstone
- Desert Crest CC
- Desert View Estates
- Desert View Estates 34004
- Desert View Estates II
- Desert Willow
- Dillion Estates 60045
- Eagle Point
- Foxdale Estates
- Hacienda Heights
- Hacienda Heights 34010
- Hidden Springs
- Hidden Springs 34011
- HidSp34011
- Indio Hills
- Lt Mor Undev. 4 34013
- Mission Lakes
- Mission Lakes 34101
- Mountain View
- Mountain View Country Estates
- Mountain View Country Estates 34014
- Not Applicable-340 NA340
- Not in a Development Not in a Development
- Olympus
- Olympus 34017
- Paradise Springs
- Paradise Springs 34018
- Rancho Del Oro
- Rancho Del Oro 34024
- Skyborne
- Skyborne 34020
- Skys Haven
- Sunset Springs
- Vista Del Valle
- Vista Del Valle 34022
- Vista Montana
- Vista Montana 34026
- Vista Palms
- Westmount Estates
Market Summary
Current real estate data for Single Family in Desert Hot Springs as of Jan 14, 2026
252
Single Family Listed
115
Avg DOM
283
Avg $ / SqFt
$490,258
Avg List Price
Property Summary
- 65187 Avenida De Nuves Desert Hot Springs CA is a Single Family for sale in Desert Hot Springs, CA, 92240. It is listed for $469,530 and features 4 beds, 3 baths, and has approximately 2,096 square feet of living space, and was originally constructed in 2025. The current price per square foot is $224. The average price per square foot for Single Family listings in Desert Hot Springs is $283. The average listing price for Single Family in Desert Hot Springs is $490,258.
Similar Listings Nearby

65187 Avenida De Nuves
Desert Hot Springs, CA















