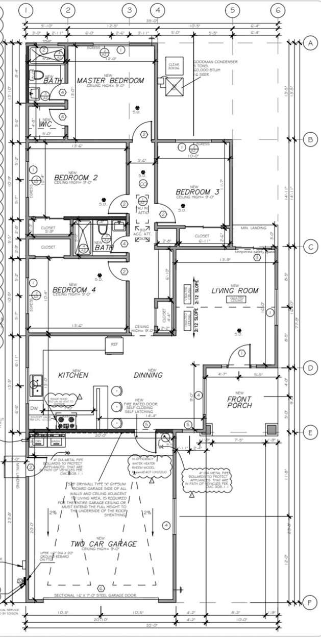
Ideal lot ready to build' 7,841 sq ft lot (approx.) with all approvals in place, offering a rare shovel-ready opportunity for your new home. Situated in a calm desert area, this parcel is fully approved through plan review (just pull the building permit) and includes an installed water meter and on property electric. The approved plans call for a net 1,486 sq ft single-story residence with 4 bedrooms and 2 bathrooms, thoughtfully designed for functional, modern living. Plans are available upon request for buyers or architects to review. Don’t miss this opportunity to build without delay.
Property Details
Price:
$100,000
MLS #:
IV25230164
Status:
Active
Beds:
0
Baths:
0
Type:
Land
Listed Date:
Sep 27, 2025
Lot Size:
7,841 sqft / 0.18 acres (approx)
See this Listing
Schools
Interior
Exterior
Community Features
BLM/National Forest, Curbs, Suburban
Lot Features
Rectangular Lot
View
Desert
Water Source
Public
Financial
Association Fee
0.00
Utilities
Electricity Available, Water Available
Map
Community
- Address12336 Sumac Drive 386 Desert Hot Springs CA
- CityDesert Hot Springs
- CountyRiverside
- Zip Code92240
Subdivisions in Desert Hot Springs
- Agua Dulce
- Agua Dulce 34001
- Andreas Hills
- Cornerstone
- Desert Crest CC
- Desert View Estates
- Desert View Estates 34004
- Desert View Estates II
- Desert Willow
- Dillion Estates 60045
- Eagle Point
- Foxdale Estates
- Hacienda Heights
- Hacienda Heights 34010
- Hidden Springs
- Hidden Springs 34011
- HidSp34011
- Indio Hills
- Lt Mor Undev. 4 34013
- Mission Lakes
- Mission Lakes 34101
- Mountain View
- Mountain View Country Estates
- Mountain View Country Estates 34014
- Not Applicable-340 NA340
- Not in a Development Not in a Development
- Olympus
- Olympus 34017
- Paradise Springs
- Paradise Springs 34018
- Rancho Del Oro
- Rancho Del Oro 34024
- Skyborne
- Skyborne 34020
- Skys Haven
- Sunset Springs
- Vista Del Valle
- Vista Del Valle 34022
- Vista Montana
- Vista Montana 34026
- Vista Palms
- Westmount Estates
Market Summary
Current real estate data for Land in Desert Hot Springs as of Nov 28, 2025
281
Land Listed
343
Avg DOM
$495,386
Avg List Price
Property Summary
- 12336 Sumac Drive 386 Desert Hot Springs CA is a Land for sale in Desert Hot Springs, CA, 92240. It is listed for $100,000 and features 0 acres.
Similar Listings Nearby

12336 Sumac Drive 386
Desert Hot Springs, CA



