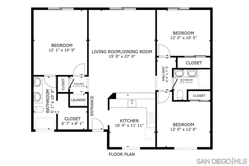
Beautiful, unique & private location! This lovely 3BR/2BA is crisp & clean and move-in ready! Never been rented and immaculately kept! Generous storage thru-out! Steps to the pool and a short stroll to the country club, fitness center and sports courts! A must see! Desert Princess offers a 27-hole PGA Championship golf course, beautifully maintained year-round! Member golf rates one of the best in the valley! HOA includes Social Membership to the active club w/no monthly minimums, Tennis & Fitness Membership, Cable + HBO/Showtime, Ext building maintenance, Ext Insurance, Ext water, 24-hr patrol, 33 pools & spas! DPCC is conveniently located mins away from PS Airport, Downtown Palm Springs w/wonderful restaurants, shopping, hiking & nightlife, Rancho Mirage & Palm Desert! The monthly HOA fee now includes cable and internet and your Social Membership to the country club with 20 percent off food (no monthly minimums) and many more luxurious amenities. The land lease has been extended to 2069. You will fall in love with this tranquil and private 3 br/2 ba single-level house with no one above or below, inside laundry, 1-car detached garage and front and largest in the community rear patio. East facing patio provides cool afternoon shade. Front patio has afternoon sun and view of Mt. San Jacinto. The interior has been remodeled with modern finishes, Tons of storage, large walk-in closets and garage with opener. New dishwasher, water heater, refrigerator, and washer/dryer, and HVAC system just serviced. Includes most furnishings per seller inventory. Desert Princess has the highest level of amenities in the HOA dues include: Maintenance of front and back yards including outside water, HOA grounds and walking paths, trash, 2 DVR/HD Spectrum Cable Boxes as well as high-speed internet. This gated community has a 24-hour security guard at the front gate. Owners have use of Fitness Center, Tennis Courts, Pickle Ball Courts, discounts at the Clubhouse Grille, Dining Room, Masters Lounge and Pro Shop. The Desert Princess has an affordable 27-hole PGA Championship Golf Course and is rated among the best in the valley by Golf Digest. Membership begins October 1 and runs through September 30 of each year. There are 3 membership categories. The exterior was recently fully upgraded by HOA
Property Details
Price:
$385,000
MLS #:
250043227SD
Status:
Active
Beds:
3
Baths:
2
Type:
Condo
Subtype:
Condominium
Listed Date:
Nov 3, 2025
Finished Sq Ft:
1,285
Lot Size:
1,742 sqft / 0.04 acres (approx)
Year Built:
1986
See this Listing
Schools
Interior
Appliances
Dishwasher, Disposal, Microwave, Refrigerator, Built- In
Cooling
Central Air
Heating
Electric, Forced Air
Exterior
Association Amenities
Cable TV, Maintenance Grounds, Insurance, Sewer, Pest Control, Trash, Security, Clubhouse Paid
Garage Spaces
1.00
Parking Features
Uncovered
Pool Features
In Ground, Community, Exercise Pool, Lap, Association, Heated
Spa Features
Community
Stories Total
1
Financial
Association Fee
954.00
Utilities
Sewer Connected, Water Connected
Map
Community
- Address28740 Desert Princess Dr Cathedral City CA
- CityCathedral City
- CountyRiverside
- Zip Code92234
Subdivisions in Cathedral City
- Aldea
- Caliente Sands Mobil
- Campanile
- Candlewood Villas I
- Candlewood Villas II
- Canyon Shores
- Canyon Shores 33606
- Cathedral Canyon CC
- Cathedral City Cove
- Cathedral City Cove 33611
- Cathedral Cyn CC SFR 33610
- Cathedral Springs
- Cathedral Springs 33534
- Cathedral Villas
- Century Park
- Century Park 33535
- Cimarron Cove
- Date Palm Country Cl
- Date Palm Country Club 33613
- Date Palm Estates
- Desert Princess
- Desert Princess Condo 33538
- Desert Princess SFR 33539
- Desert Sands 33617
- Desert Sands Mobile
- Desert Shadows Rv Re
- Desert Shadows RV Resort 33619
- Desrt Princess Sfr
- District East
- Dream Homes
- La Pasada
- La Pasada 33540
- Lakeview Villa
- Montage
- Not Applicable-335
- Not in a Development Not in a Development
- Outdoor Resorts Palm Springs
- Panorama
- Panorama 33545
- Rancho Paloma
- Rancho Ramon 33624
- Rancho Village
- Rich Sands Estates
- Rio Del Sol
- Rio Del Sol 33626
- Rio Vista 33547
- Royal Palms
- Santoro Estates
- Serenity Cove
- Shadow Crest
- Sungate
- The Campus
- The Campus 33633
- The Canyon
- Tramview Mobile Park
- Upper Outpost
- Verano
- Verano 33552
Market Summary
Current real estate data for Condo in Cathedral City as of Jan 13, 2026
83
Condo Listed
161
Avg DOM
266
Avg $ / SqFt
$335,384
Avg List Price
Property Summary
- 28740 Desert Princess Dr Cathedral City CA is a Condo for sale in Cathedral City, CA, 92234. It is listed for $385,000 and features 3 beds, 2 baths, and has approximately 1,285 square feet of living space, and was originally constructed in 1986. The current price per square foot is $300. The average price per square foot for Condo listings in Cathedral City is $266. The average listing price for Condo in Cathedral City is $335,384.
Similar Listings Nearby

28740 Desert Princess Dr
Cathedral City, CA
















































