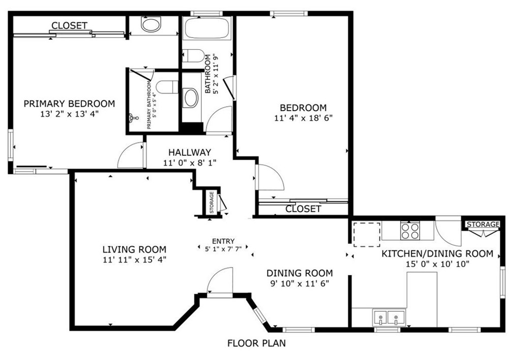
Discover your dream home at Sun Lakes Country Club-Seller is motivated, Banning’s premier 55+ community and on the 15th hole! This immaculate 2-bed, 2-bath, 1,096 sq ft retreat offers a peaceful sanctuary with a direct view of the golf course, perfect for relaxation as the sun sets over the 15th hole. With welcoming curb appeal featuring vaulted ceilings and well-kept landscaping, the bright living space includes a cozy fireplace and sliding doors leading to a backyard oasis. The culinary haven boasts oak cabinets, granite counters, and a quaint breakfast nook with lush views. Enjoy the comfort of two inviting bedrooms, including a primary suite with a remodeled ensuite and direct access to the backyard. Embrace resort-style living with multiple pools, gyms, clubhouses, and championship golf right outside your door. Relax in the Alumawood patio, sipping tea as you watch golfers navigate the fairway. This lovingly maintained home features new windows and doors installed in 2022, along with a new HVAC system and new shower completed in 2018. More than just a home, it’s a lifestyle' make your appointment today and take the first step toward living the life you’ve always dreamed of!
Property Details
Price:
$350,000
MLS #:
IG25181101
Status:
Active
Beds:
2
Baths:
2
Type:
Single Family
Subtype:
Single Family Residence
Listed Date:
Aug 11, 2025
Finished Sq Ft:
1,096
Lot Size:
4,356 sqft / 0.10 acres (approx)
Year Built:
1988
See this Listing
Schools
Interior
Accessibility Features
2+ Access Exits
Appliances
Dishwasher, ENERGY STAR Qualified Water Heater, Gas Oven, Gas Range, Gas Water Heater, High Efficiency Water Heater, Ice Maker, Range Hood, Recirculated Exhaust Fan, Refrigerator, Self Cleaning Oven, Water Heater
Cooling
Central Air, SEER Rated 13-15
Fireplace Features
Living Room, Gas Starter
Flooring
Carpet, Tile
Heating
Central, ENERGY STAR Qualified Equipment, Fireplace(s)
Interior Features
Built-in Features, Copper Plumbing Full, Granite Counters, High Ceilings, Open Floorplan, Pull Down Stairs to Attic, Recessed Lighting, Unfurnished
Exterior
Association Amenities
Pool, Spa/Hot Tub, Tennis Court(s), Bocce Ball Court, Clubhouse, Cable TV, Maintenance Grounds, Sewer
Community Features
Golf, Sidewalks, Suburban
Fencing
Stucco Wall, Vinyl
Garage Spaces
2.00
Lot Features
Lawn, Level, On Golf Course, Sprinkler System, Sprinklers In Front, Yard
Parking Features
Direct Garage Access, Concrete, Garage
Pool Features
Association, Community
Security Features
24 Hour Security, Gated with Attendant, Gated Community, Gated with Guard
Sewer
Public Sewer
Spa Features
Association, Community
Stories Total
1
View
Golf Course, Mountain(s), Neighborhood
Water Source
Public
Financial
Association Fee
385.00
Utilities
Electricity Connected, Natural Gas Connected, Sewer Connected, Water Connected
Map
Community
- Address1085 Pauma Valley Road Banning CA
- CityBanning
- CountyRiverside
- Zip Code92220
Subdivisions in Banning
Market Summary
Current real estate data for Single Family in Banning as of Nov 29, 2025
212
Single Family Listed
85
Avg DOM
288
Avg $ / SqFt
$479,343
Avg List Price
Property Summary
- 1085 Pauma Valley Road Banning CA is a Single Family for sale in Banning, CA, 92220. It is listed for $350,000 and features 2 beds, 2 baths, and has approximately 1,096 square feet of living space, and was originally constructed in 1988. The current price per square foot is $319. The average price per square foot for Single Family listings in Banning is $288. The average listing price for Single Family in Banning is $479,343.
Similar Listings Nearby

1085 Pauma Valley Road
Banning, CA




























