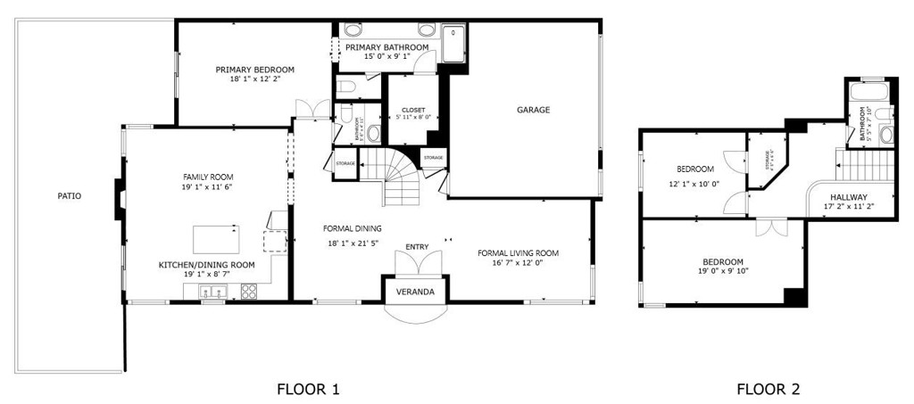
**Owner has an assumable 5.75% VA loan** Highly sought-after “Muirfield 50” model offering 1,837 square feet of living space with window shutters throughout, located within the premier 55+ guard-gated community of Sun Lakes Country Club with a wealth of recreational amenities and social events, golf courses, tennis courts, fitness centers, pools, elegant clubhouses, restaurant, bar, and lounge just to name a few. HOA dues also include Spectrum cable TV and internet. The home’s exterior was painted last year and recently refreshed and thoughtfully upgraded just for you. Updates include beautifully treated countertops, fresh carpet on stairs and laminate flooring upstairs and downstairs, new faucets, showerheads, and toilets, and stylish light fixtures—just the beginning of what this home has to offer. Welcome into the foyer through double doors, where soaring ceilings create an open, airy atmosphere, and an abundance of natural light. Imagine the best of both worlds, an elegant formal living room and dining room, perfect for entertaining. The flowing floorplan continues into the kitchen and family room, where a lovely gas fireplace adds warmth and charm, and the island and breakfast nook adds a cozy family retreat! This home has 3 bedrooms. The primary suite boasts dual sinks with an extended counter with built-in vanity, step-in shower, skylight, and updated walk-in closet' and half-bath located on the 1st floor. A haven for hobbies, office, or guests are 2 additional bedrooms and full bathroom with a tub/shower combo located upstairs. Additional conveniences include direct garage access that offers laundry area, plenty of space for two cars, workbenches and built-in cabinet, and additional storage for a golf cart. To put icing on the cake, this home has convenient, smart app features for Ecobee thermostat and myQ remote garage door opener with camera and keyless keypad. **Owner has an assumable 5.75% VA loan**
Property Details
Price:
$405,000
MLS #:
IV25213786
Status:
Active
Beds:
3
Baths:
3
Type:
Single Family
Subtype:
Single Family Residence
Listed Date:
Sep 12, 2025
Finished Sq Ft:
1,837
Lot Size:
4,356 sqft / 0.10 acres (approx)
Year Built:
1990
See this Listing
Schools
Interior
Cooling
Central Air
Fireplace Features
Family Room, Gas
Flooring
Carpet
Exterior
Association Amenities
Pool, Spa/Hot Tub, Tennis Court(s), Bocce Ball Court, Clubhouse, Cable TV, Maintenance Grounds, Sewer, Security, Controlled Access
Community Features
Curbs, Sidewalks, Storm Drains, Street Lights, Suburban
Garage Spaces
2.00
Lot Features
0-1 Unit/Acre
Parking Features
Direct Garage Access, Driveway, Garage Faces Front, Garage Door Opener, Oversized
Pool Features
Association
Sewer
Public Sewer
Spa Features
Association
Stories Total
2
View
Neighborhood
Water Source
Public
Financial
Association Fee
385.00
Map
Community
- Address1049 Olympic Avenue Banning CA
- CityBanning
- CountyRiverside
- Zip Code92220
Subdivisions in Banning
Market Summary
Current real estate data for Single Family in Banning as of Nov 28, 2025
212
Single Family Listed
85
Avg DOM
288
Avg $ / SqFt
$479,343
Avg List Price
Property Summary
- 1049 Olympic Avenue Banning CA is a Single Family for sale in Banning, CA, 92220. It is listed for $405,000 and features 3 beds, 3 baths, and has approximately 1,837 square feet of living space, and was originally constructed in 1990. The current price per square foot is $220. The average price per square foot for Single Family listings in Banning is $288. The average listing price for Single Family in Banning is $479,343.
Similar Listings Nearby

1049 Olympic Avenue
Banning, CA




















